Grundstück, Wohnen

! Spekulationsobjekt ! Ca.3.9 Hektar Land in bester Lage auf Sylt! Seltene Möglichkeit.


25996 Wenningstedt / Braderup
Grundstück, Wohnen

! Spekulationsobjekt ! Ca.3.9 Hektar Land in bester Lage auf Sylt! Seltene Möglichkeit.


25996 Wenningstedt / Braderup

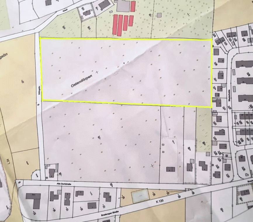
Grundstück 39000 m2

Wohnfläche 0 m2

Thomas Nowark
Für alle Ihre Anliegen

Herr Thomas Nowark
Immobilienberater


Telefon: +49 461 9993 6405
Mobil: +49 171 8340 230

thomas.nowark@live.werth-immobilien.ggmtesting.com

Über das Objekt

Objektdaten

  • Objektnr.FL-276-TN-24
  • Grundstück39000 m2
  • ObjektartGrundstück
  • Gäste-WCNein
  • BalkonNein
  • TerrasseNein

Energiedaten

  • Energieausweisdatum12.05.2026
  • Energieausweis ArtBedarfsausweis
  • Energie mit WarmwasserNein
Kaufpreis33.000.000,00 €

Courtage: 7,14%

Thomas Nowark
Für alle Ihre Anliegen

Herr Thomas Nowark
Immobilienberater


Telefon: +49 461 9993 6405
Mobil: +49 171 8340 230

thomas.nowark@live.werth-immobilien.ggmtesting.com

Über das Objekt

Dieses Grundstück / Spekulationsobjekt liegt in einer der begehrtesten Lagen auf Sylt und bietet ein seltenes Potenzial: Eingebettet in eine ruhige, aber sehr gut angebundene Nachbarschaft, wird es von stilvollen Wohnhäusern und gepflegten Grünflächen umgeben. Die Infrastruktur in der Umgebung hat sich in den letzten Jahren hervorragend entwickelt, mit neuen Einkaufsmöglichkeiten, Restaurants und Freizeitangeboten, die das Leben hier besonders angenehm machen. Durch die nahe Anbindung an Hauptverkehrsstraßen und öffentliche Verkehrsmittel ist das Grundstück toll gelegen.
Aktuell lässt die Lage des Grundstücks keine Bebauung zu, doch das Gebiet erfährt eine sichtbare und beständige Entwicklung. Die umliegenden Grundstücke sind bereits bebaut und zeigen eine gestiegene Nachfrage nach Wohnraum in dieser malerischen Gegend. Die harmonische Nachbarschaft und die geplanten Entwicklungen der Gemeinde tragen dazu bei, dass das Potenzial für dieses Grundstück in der Zukunft steigt.

Seine Lage vereint das Beste aus zwei Welten: eine idyllische Umgebung und eine moderne Infrastruktur. Spazierwege, Parks und Naherholungsgebiete befinden sich in unmittelbarer Nähe und bieten Lebensqualität und Naturverbundenheit. Ein Grundstück in solch einer Lage ist eine seltene Gelegenheit – mit dem gewissen Etwas, das es für die Zukunft besonders vielversprechend macht.

Lage und Umgebung

Wenningstedt-Braderup auf der Nordseeinsel Sylt ist ein idyllisches Kleinod, das für seine unvergleichliche Landschaft, das reiche Freizeitangebot und die typisch nordfriesische Atmosphäre bekannt ist. Der Ort setzt sich aus zwei Teilen zusammen: dem charmanten Dorf Wenningstedt und dem beschaulichen Braderup, das malerisch am Wattenmeer liegt. Gemeinsam bilden sie eine harmonische Einheit, die alle Facetten Sylts widerspiegelt.

**Wenningstedt** erstreckt sich entlang der Westküste Sylts, die von endlosen, breiten Sandstränden und den imposanten Dünen des Roten Kliffs geprägt ist. Diese natürliche Formation ist besonders beeindruckend, da die Steilküste in warmen Rottönen schimmert und einen dramatischen Kontrast zum tiefen Blau der Nordsee bildet. Der Strand von Wenningstedt ist weitläufig und feinsandig, ideal für Spaziergänge, Strandtage und Wassersportarten wie Surfen oder Stand-Up-Paddling. Hier können Besucher die frische Meeresbrise genießen und den weiten Blick über die Nordsee schweifen lassen, während die Möwen ihre Kreise ziehen.

Das Herz von Wenningstedt ist der Dorfkern, wo traditionelle Friesenhäuser mit Reetdächern und gepflegte Gärten die Szenerie prägen. Hier gibt es zahlreiche Restaurants und Cafés, die typisch norddeutsche Spezialitäten servieren – von frischem Fisch bis zu Friesentorten. Auch der Dorfteich, ein kleiner Natursee im Zentrum von Wenningstedt, lädt zum Verweilen ein und schafft eine ruhige, fast märchenhafte Atmosphäre. An warmen Sommerabenden finden hier gelegentlich Konzerte und Veranstaltungen statt, die den besonderen Charme des Ortes unterstreichen.

**Braderup** hingegen liegt etwas ruhiger und abseits vom Trubel, direkt am UNESCO-Weltnaturerbe Wattenmeer. Diese einzigartige Landschaft ist ein wahres Paradies für Naturliebhaber und Erholungssuchende. Bei Ebbe zeigt sich das Wattenmeer in voller Pracht – eine weite, geheimnisvolle Ebene aus Schlick und Sand, durchzogen von kleinen Wasserläufen und voller Leben. Hier lassen sich Vögel und andere Wattenmeerbewohner in ihrer natürlichen Umgebung beobachten. Der „Braderuper Heideweg“ führt Wanderer und Radfahrer durch die geschützte Heidelandschaft, die besonders im Spätsommer, wenn die Heide blüht, in intensiven Lila- und Rosatönen leuchtet und eine beinahe mystische Atmosphäre schafft.

Wenningstedt-Braderup auf der Nordseeinsel Sylt ist ein idyllisches Kleinod, das für seine unvergleichliche Landschaft, das reiche Freizeitangebot und die typisch nordfriesische Atmosphäre bekannt ist. Der Ort setzt sich aus zwei Teilen zusammen: dem charmanten Dorf Wenningstedt und dem beschaulichen Braderup, das malerisch am Wattenmeer liegt. Gemeinsam bilden sie eine harmonische Einheit, die alle Facetten Sylts widerspiegelt.

**Wenningstedt** erstreckt sich entlang der Westküste Sylts, die von endlosen, breiten Sandstränden und den imposanten Dünen des Roten Kliffs geprägt ist. Diese natürliche Formation ist besonders beeindruckend, da die Steilküste in warmen Rottönen schimmert und einen dramatischen Kontrast zum tiefen Blau der Nordsee bildet. Der Strand von Wenningstedt ist weitläufig und feinsandig, ideal für Spaziergänge, Strandtage und Wassersportarten wie Surfen oder Stand-Up-Paddling. Hier können Besucher die frische Meeresbrise genießen und den weiten Blick über die Nordsee schweifen lassen, während die Möwen ihre Kreise ziehen.

Das Herz von Wenningstedt ist der Dorfkern, wo traditionelle Friesenhäuser mit Reetdächern und gepflegte Gärten die Szenerie prägen. Hier gibt es zahlreiche Restaurants und Cafés, die typisch norddeutsche Spezialitäten servieren – von frischem Fisch bis zu Friesentorten. Auch der Dorfteich, ein kleiner Natursee im Zentrum von Wenningstedt, lädt zum Verweilen ein und schafft eine ruhige, fast märchenhafte Atmosphäre. An warmen Sommerabenden finden hier gelegentlich Konzerte und Veranstaltungen statt, die den besonderen Charme des Ortes unterstreichen.

**Braderup** hingegen liegt etwas ruhiger und abseits vom Trubel, direkt am UNESCO-Weltnaturerbe Wattenmeer. Diese einzigartige Landschaft ist ein wahres Paradies für Naturliebhaber und Erholungssuchende. Bei Ebbe zeigt sich das Wattenmeer in voller Pracht – eine weite, geheimnisvolle Ebene aus Schlick und Sand, durchzogen von kleinen Wasserläufen und voller Leben. Hier lassen sich Vögel und andere Wattenmeerbewohner in ihrer natürlichen Umgebung beobachten. Der „Braderuper Heideweg“ führt Wanderer und Radfahrer durch die geschützte Heidelandschaft, die besonders im Spätsommer, wenn die Heide blüht, in intensiven Lila- und Rosatönen leuchtet und eine beinahe mystische Atmosphäre schafft.

Kontakt zu Ihrem Immobilienberater

Thomas Nowark
Für alle Ihre Anliegen

Herr Thomas Nowark
Immobilienberater


Telefon: +49 461 9993 6405
Mobil: +49 171 8340 230

thomas.nowark@live.werth-immobilien.ggmtesting.com

    Ich bitte um:
    Bitte beweise, dass du kein Spambot bist und wähle das Symbol Auto.

    Energieausweis erstellen

    Ihr Energieausweis in wenigen Schritten - Schnell, günstig und rechtskonform

    jetzt erstellen
    Kontakt

    Wie kann ich Ihnen helfen?

    Ansprechpartner

    Sven Möller

    Geschäftsführung Vertrieb

    Telefon: +49 4832 979 29 71
    Mobil: +49 1609 777 11 63

    Dürfen Wir Sie zurückrufen?

      Kontaktformular