Haus, Einfamilienhaus

Nahe Büsum** ** schöner Bungalow mit Weitblick und Ruhe** Einmalige Gelegenheit**


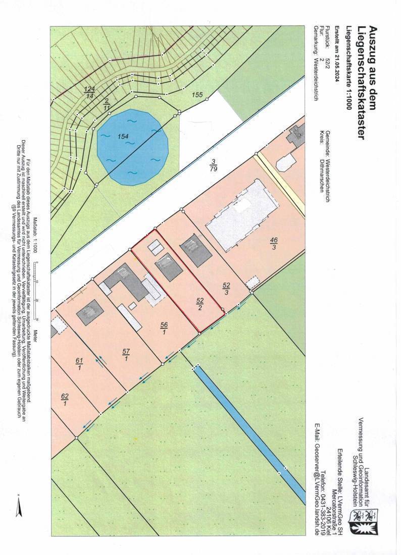
25761 Westerdeichstrich
Haus, Einfamilienhaus

Nahe Büsum** ** schöner Bungalow mit Weitblick und Ruhe** Einmalige Gelegenheit**


25761 Westerdeichstrich

Baujahr 1992

Grundstück 1000 m2

Wohnfläche 105 m2

Zimmer 3

Badezimmer 2

Stellplätze 2

Barbara Martens-Petersen
Für alle Ihre Anliegen

Frau Barbara Martens-Petersen
Immobilienberaterin


Telefon: +49 4832 6017 938
Mobil: +49 1578 8922 680

barbara.martens-petersen@live.werth-immobilien.ggmtesting.com

Über das Objekt

Objektdaten

  • Objektnr.ME-518-BMP-24
  • Wohnfläche105 m2
  • Grundstück1000 m2
  • Zimmer3
  • Schlafzimmer2
  • Badezimmer2
  • Stellplätze2
  • ObjektartHaus
  • Nutzfläche39 m2
  • Baujahr1992
  • AusstattungGehoben
  • Gäste-WCNein
  • BalkonNein
  • TerrasseJa

Energiedaten

  • EnergieeffizienzklasseG
  • Energiebedarf226.50 kWh (m2a)
  • Energieausweisdatum15.05.2034
  • Energieausweis ArtBedarfsausweis
  • Energie mit WarmwasserJa
  • Baujahr1992
  • HeizungsartZentralheizung
Kaufpreis369.000,00 €
Barbara Martens-Petersen
Für alle Ihre Anliegen

Frau Barbara Martens-Petersen
Immobilienberaterin


Telefon: +49 4832 6017 938
Mobil: +49 1578 8922 680

barbara.martens-petersen@live.werth-immobilien.ggmtesting.com

Über das Objekt

Unweit von Büsum steht dieser schöne Bungalow in einem Ortsteil von Westerdeichstrich.
Von der Straße kaum einsehbar und durch 2 Garagen geschützt fühlt man sich hier geborgen und kann ungestört seinen Urlaub verbringen.
Ebenso ist es möglich hier seinen Hauptwohnsitz anzumelden.
An der linken Seite des Bungalows befindet sich die Eingangstür, von hier gelangt man in einen hellen Flur von dem der Hauswirtschaftsraum mit Waschmaschine, Heizung und Elektroinstallation, ein Bad mit Dusche und WC, ein Schlaf – oder Arbeitszimmer und am Ende des Flures das Wohnzimmer abgeht.
Der gesamte Wohnbereich ist hell und freundlich gestaltet.
Die Zimmertüren sind hochwertig in Weiß gehalten.
Das schöne lichtdurchflutete Wohnzimmer mit über 36 m² Grundfläche bietet viele Möglichkeiten der Gestaltung.
Hier ist anzumerken, dass die Einrichtung der Immobilie nach Absprache übernommen werden kann.
Vom Wohnzimmer aus kann man den Blick durch die Terrassenfenster in den Garten genießen.
Auch ist es möglich die große, über die gesamte Hausbreite mit roten Pflastersteinen, angelegte Terrasse von hier aus zu betreten.

Im Wohnzimmer wurde ein geschmacklich passender Kachelofen installiert.
Er schenkt zusätzlich zu der Heizung wohlige Wärme im Winter und in der Übergangszeit.

Rechtsseitig vom Wohnbereich wurde eine große moderne Küche mit Essecke eingerichtet.
Hier bleibt man gerne etwas länger sitzen.
Von der Küche aus hat man die Möglichkeit auf eine kleine Terrasse zu gehen.

Linksseitig vom Wohnzimmer befindet sich das zweite Schlafzimmer mit angrenzendem Tageslicht-Badezimmer mit Badewanne und WC.
Dieses Bad wurde noch nicht renoviert und hat den Standard von 1992.
Der Garten ist Pflegeleicht mit einer großen Rasenfläche und ein paar Bäumen zur Schattenspendung angelegt.
Vereinzelt gibt es Blumenbeete.

Das Dach des Bungalows ist nicht ausgebaut.
Ein Ausbau ist möglich, dieser würde aber nicht die Wohnfläche vergrößern, da die Stehhöhe für eine Genehmigung nicht ausreichend ist.
Es bietet dennoch viel Stauraum.

Die beiden Garagen, eine mit elektrischem Garagentor, sind mit dem gleichen Klinker wie die Hausfassade versehen.
Die gesamte Immobilie ist mit Ihren Gartenwegen, der Terrasse und dem einheitlichen Konzept sehr geschmackvoll gehalten.
Machen Sie sich einen eigenen Eindruck und vereinbaren Sie einen Besichtigungstermin.
Im Exposé finden Sie weitere Bilder!

Galerie


Lage und Umgebung

Westerdeichstrich ist eine Gemeinde im Amt Kirchspielland Büsum mit rund 924 Einwohnern. Die 1824 erstmals urkundlich erwähnte Gemeinde liegt direkt an der Nordsee. Bestimmend im Ortsbild ist die Alte Mühle, die heute eine Gaststätte beherbergt. Es erwartet Sie gesunde, jodhaltige Salzluft, Ebbe und Flut im Gezeitenwechsel und eine nordseegeprägte Landschaft.
Westerdeichstrich befindet sich ca. 3 km vor Büsum, ca. 70 Autominuten nördlich von Hamburg. Alle wichtigen Institutionen der öffentlichen Nahversorgung befinden sich in Büsum oder in Heide.
Am gepflegten 2 km langen Grünstrand von Westerdeichstrich finden Sie, außer dem normalen Familienstrand, einen Hundestrand und einen FKK-Strand.
Einige Gastronomiebetriebe mit empfehlenswerten Küchen runden das Ambiente des Ortes ab.
Im Ortsteil Stinteck befinden sich 3 Campingplätze, ein Reiterhof und viele Radwege für erholsame Fahrradtouren sind im gesamten Umkreis zu finden.

In der Nähe

  • Kindergaerten-4,0 KM
  • Grundschule-4,0 KM
  • Realschule-4,0 KM
  • Einkaufsmoeglichkeiten-3,5 KM
  • Gymnasium-4,2 KM
  • Autobahn-17,5 KM
  • Zentrum-3,0 KM

Westerdeichstrich ist eine Gemeinde im Amt Kirchspielland Büsum mit rund 924 Einwohnern. Die 1824 erstmals urkundlich erwähnte Gemeinde liegt direkt an der Nordsee. Bestimmend im Ortsbild ist die Alte Mühle, die heute eine Gaststätte beherbergt. Es erwartet Sie gesunde, jodhaltige Salzluft, Ebbe und Flut im Gezeitenwechsel und eine nordseegeprägte Landschaft.
Westerdeichstrich befindet sich ca. 3 km vor Büsum, ca. 70 Autominuten nördlich von Hamburg. Alle wichtigen Institutionen der öffentlichen Nahversorgung befinden sich in Büsum oder in Heide.
Am gepflegten 2 km langen Grünstrand von Westerdeichstrich finden Sie, außer dem normalen Familienstrand, einen Hundestrand und einen FKK-Strand.
Einige Gastronomiebetriebe mit empfehlenswerten Küchen runden das Ambiente des Ortes ab.
Im Ortsteil Stinteck befinden sich 3 Campingplätze, ein Reiterhof und viele Radwege für erholsame Fahrradtouren sind im gesamten Umkreis zu finden.

In der Nähe

  • Kindergaerten-4,0 KM
  • Grundschule-4,0 KM
  • Realschule-4,0 KM
  • Einkaufsmoeglichkeiten-3,5 KM
  • Gymnasium-4,2 KM
  • Autobahn-17,5 KM
  • Zentrum-3,0 KM

Kontakt zu Ihrem Immobilienberater

Barbara Martens-Petersen
Für alle Ihre Anliegen

Frau Barbara Martens-Petersen
Immobilienberaterin


Telefon: +49 4832 6017 938
Mobil: +49 1578 8922 680

barbara.martens-petersen@live.werth-immobilien.ggmtesting.com

    Ich bitte um:
    Bitte beweise, dass du kein Spambot bist und wähle das Symbol Herz.

    Energieausweis erstellen

    Ihr Energieausweis in wenigen Schritten - Schnell, günstig und rechtskonform

    jetzt erstellen
    Kontakt

    Wie kann ich Ihnen helfen?

    Ansprechpartner

    Sven Möller

    Geschäftsführung Vertrieb

    Telefon: +49 4832 979 29 71
    Mobil: +49 1609 777 11 63

    Dürfen Wir Sie zurückrufen?

      Kontaktformular