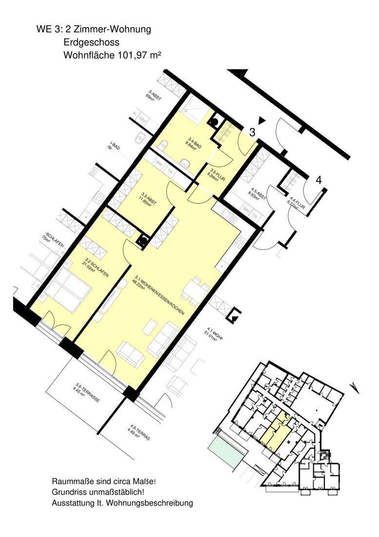
Wohnung, Erdgeschoss

Erstbezug einer 2 Zimmer Wohnung im Erdgeschoss mit 101,97qm


25712 Burg
Wohnung, Erdgeschoss

Erstbezug einer 2 Zimmer Wohnung im Erdgeschoss mit 101,97qm


25712 Burg

Baujahr 1968

Grundstück 0 m2

Wohnfläche 101.97 m2

Zimmer 2

Badezimmer 1

Stellplätze 1

Peter von Osten
Für alle Ihre Anliegen

Herr Peter von Osten
Immobilienberater


Telefon: +49 4825 2222
Mobil: +49 176 6306 5115

peter.vonosten@live.werth-immobilien.ggmtesting.com

Über das Objekt

Objektdaten

  • Objektnr.BU-480-PVO-24
  • Wohnfläche101.97 m2
  • Zimmer2
  • Schlafzimmer1
  • Badezimmer1
  • Stellplätze1
  • ObjektartWohnung
  • Baujahr1968
  • AusstattungStandard
  • Gäste-WCNein
  • BalkonNein
  • TerrasseJa

Energiedaten

  • EnergieeffizienzklasseA+
  • Energiebedarf15.90 kWh (m2a)
  • PrimärenergieträgerLuft-Wärme-Pumpe
  • Energieausweisdatum08.12.2034
  • Energieausweis ArtBedarfsausweis
  • Energie mit WarmwasserJa
  • Baujahr1968
Kaltmiete1.014,00 €
Peter von Osten
Für alle Ihre Anliegen

Herr Peter von Osten
Immobilienberater


Telefon: +49 4825 2222
Mobil: +49 176 6306 5115

peter.vonosten@live.werth-immobilien.ggmtesting.com

Über das Objekt

Sind Sie auf der Suche nach einer modernen, hochwertigen Wohnung in zentraler Lage? Dann haben wir das perfekte Angebot für Sie!

Ab März 2025 steht Ihnen diese exklusive Wohnung im Erdgeschoss zur Verfügung. Das Gebäude, vielen noch als ehemaliger EDEKA-Markt bekannt, wurde in den letzten Monaten umfassend umgebaut und saniert. Es umfasst nun insgesamt 13 moderne Wohnungen, die keine Wünsche offenlassen.

Beim Betreten der Wohnung gelangen Sie über die Eingangstür in einen einladenden Flur, der als zentraler Zugangspunkt zu den meisten Räumen dient. Die Wohnung zeichnet sich durch einen hohen, zeitgemäßen Standard aus, der für ein angenehmes und modernes Wohngefühl sorgt. Die großzügige Wohnküche bildet das Herzstück der Wohnung und bietet ausreichend Platz für gesellige Stunden mit Familie und Freunden, während die angrenzende Terrasse zum Entspannen einlädt.

Die stilvoll gestaltete Küchenzeile wird mit modernen Einbaugeräten ausgestattet und lässt keine Wünsche offen.

Das Schlafzimmer bietet ausreichend Raum für ein großes Bett sowie weitere Möbelstücke und sorgt so für eine ruhige, komfortable Atmosphäre. Das Badezimmer ist mit einer barrierearmen Duschwanne ausgestattet. Ein praktischer Abstellraum verfügt über zusätzlichen Stauraum und bietet genügend Platz für Waschmaschine und Trockner.

Die Fußbodenheizung in allen Räumen sorgt für eine gleichmäßige Wärmeverteilung und ein behagliches Wohnklima.

Aufgrund des modernen, energetischen Standards ist die Wohnung besonders energieeffizient und nachhaltig. So konnten die Nebenkosten auf ein niedriges Niveau gesenkt werden. Dank der verbauten Wärmepumpe kann auch künftig von geringen Heizkosten profitiert werden.

Diese Wohnung bietet Ihnen modernen Wohnkomfort in einer erstklassigen Lage. Zögern Sie nicht und sichern Sie sich Ihr neues Zuhause!

Bitte teilen Sie uns bei Ihrer Anfrage einige Details zu Ihrer Person, Ihren Lebensumständen und gegebenenfalls beruflichen Hintergründen mit. Sie möchten mit Ihrem Haustier einziehen? Sprechen Sie uns gerne an. Vielen Dank!

Galerie


Lage und Umgebung

Burg ist eine Gemeinde in Schleswig-Holstein im Kreis Dithmarschen, am Nord-Ostsee-Kanal, der 2004 gegründeten deutschen Fährstraße und der grünen Küstenstraße. Der Ort mit rund 4.150 Einwohnern ist als Luftkurort staatlich anerkannt. Den Namen „Perle der Westküste“ hat Burg sich durch seine zwei unterschiedlichen Naturräume, die Geest- und Marschlandschaft verdient. Burg versteckt sich in einem herrlichen Waldbestand und die Burger haben viel dazu beigetragen, den Ort zu begrünen und liebevoll zu gestalten. An manchen Stellen erblickt man noch historische Fachwerke, Fassaden und Treppengänge, diese Idylle und die Luft, eine Mischung aus Nordsee- und Waldklima ist einfach fantastisch. Der von hohen Bäumen bestandene Marktplatz bildet den Mittelpunkt von Burg. Hier befinden sich auch ältere Häuser, von denen besonders die ehemals königliche Apotheke von 1839 und die Feldsteinkirche aus dem 12. Jahrhundert ist. Burg hat einen eigenen Bahnhof an der Verbindung Hamburg – Westerland, von diesem fahren stündlich die Züge in beide Richtungen. Weiterhin liegt Burg direkt am Nord-Ostsee-Kanal mit einer Fährverbindung. Innerhalb Burgs gibt es eine Vielzahl an verschiedenen Einkaufsmöglichkeiten und Handwerkern, ebenso sind im Ort Ärzte und Apotheken vertreten. Dazu verfügt Burg für die Kinder über den Petri- und Waldkindergarten und einer Grund -und Gemeinschaftsschule. Für die Freizeit stehen Erwachsenen und Kindern viele Vereine zur Verfügung, hier können Sie Fußball, Handball, Tennis, Volleyball und Schach spielen aber auch turnen und schwimmen und vieles mehr, hier ist für jeden was dabei! Außerdem befinden sich in Burg einige Restaurants, ein Teeladen, ein Fitnessstudio und eine Paintball Anlage. Im Großen und Ganzen ist der Ort eine schöne Abwechslung zur Innenstadt mit dennoch so vielen Sehenswürdigkeiten und Optionen.

In der Nähe

  • Kindergaerten-0,6 KM
  • Grundschule-0,7 KM
  • Realschule-0,9 KM
  • Einkaufsmoeglichkeiten-0,5 KM
  • Gymnasium-15,0 KM
  • Autobahn-15,0 KM
  • Zentrum-0,1 KM

Burg ist eine Gemeinde in Schleswig-Holstein im Kreis Dithmarschen, am Nord-Ostsee-Kanal, der 2004 gegründeten deutschen Fährstraße und der grünen Küstenstraße. Der Ort mit rund 4.150 Einwohnern ist als Luftkurort staatlich anerkannt. Den Namen „Perle der Westküste“ hat Burg sich durch seine zwei unterschiedlichen Naturräume, die Geest- und Marschlandschaft verdient. Burg versteckt sich in einem herrlichen Waldbestand und die Burger haben viel dazu beigetragen, den Ort zu begrünen und liebevoll zu gestalten. An manchen Stellen erblickt man noch historische Fachwerke, Fassaden und Treppengänge, diese Idylle und die Luft, eine Mischung aus Nordsee- und Waldklima ist einfach fantastisch. Der von hohen Bäumen bestandene Marktplatz bildet den Mittelpunkt von Burg. Hier befinden sich auch ältere Häuser, von denen besonders die ehemals königliche Apotheke von 1839 und die Feldsteinkirche aus dem 12. Jahrhundert ist. Burg hat einen eigenen Bahnhof an der Verbindung Hamburg – Westerland, von diesem fahren stündlich die Züge in beide Richtungen. Weiterhin liegt Burg direkt am Nord-Ostsee-Kanal mit einer Fährverbindung. Innerhalb Burgs gibt es eine Vielzahl an verschiedenen Einkaufsmöglichkeiten und Handwerkern, ebenso sind im Ort Ärzte und Apotheken vertreten. Dazu verfügt Burg für die Kinder über den Petri- und Waldkindergarten und einer Grund -und Gemeinschaftsschule. Für die Freizeit stehen Erwachsenen und Kindern viele Vereine zur Verfügung, hier können Sie Fußball, Handball, Tennis, Volleyball und Schach spielen aber auch turnen und schwimmen und vieles mehr, hier ist für jeden was dabei! Außerdem befinden sich in Burg einige Restaurants, ein Teeladen, ein Fitnessstudio und eine Paintball Anlage. Im Großen und Ganzen ist der Ort eine schöne Abwechslung zur Innenstadt mit dennoch so vielen Sehenswürdigkeiten und Optionen.

In der Nähe

  • Kindergaerten-0,6 KM
  • Grundschule-0,7 KM
  • Realschule-0,9 KM
  • Einkaufsmoeglichkeiten-0,5 KM
  • Gymnasium-15,0 KM
  • Autobahn-15,0 KM
  • Zentrum-0,1 KM

Kontakt zu Ihrem Immobilienberater

Peter von Osten
Für alle Ihre Anliegen

Herr Peter von Osten
Immobilienberater


Telefon: +49 4825 2222
Mobil: +49 176 6306 5115

peter.vonosten@live.werth-immobilien.ggmtesting.com

    Ich bitte um:
    Bitte beweise, dass du kein Spambot bist und wähle das Symbol Schlüssel.

    Energieausweis erstellen

    Ihr Energieausweis in wenigen Schritten - Schnell, günstig und rechtskonform

    jetzt erstellen
    Kontakt

    Wie kann ich Ihnen helfen?

    Ansprechpartner

    Sven Möller

    Geschäftsführung Vertrieb

    Telefon: +49 4832 979 29 71
    Mobil: +49 1609 777 11 63

    Dürfen Wir Sie zurückrufen?

      Kontaktformular